Projekt dřevostavby - půdorys str. 4
- tym
- Test driver

- Příspěvky: 3745
- Registrován: 20.05.2011 21:49
- Bydliště: Pilsner Urquell
Re: Projekt dřevostavby - půdorys str. 4
-
Eidž
- Test driver

- Příspěvky: 2224
- Registrován: 20.02.2010 09:39
- Bydliště: Hradec Králové/Pardubice
Re: Projekt dřevostavby - půdorys str. 4
Tak záleží, kolik m nad zemí bude ta protažená střecha končit. Plus okap. 
Jinak právě řešíme terasu a zatím u nás vítězí ta samá krytina, co je na střeše. Sice méně světla, ale zase líp bude clonit sluneční paprsky - nebude to takový skleník.
A asi mě budete kamenovat, ale na terase by dle mého názoru měla být možnost připojení myčky a úložné prostory pro nádobí. Jako ne full kuchyňskou linku, ale když vidím, kolik nádobí taháme tam a sem a sem a tam...
Jinak právě řešíme terasu a zatím u nás vítězí ta samá krytina, co je na střeše. Sice méně světla, ale zase líp bude clonit sluneční paprsky - nebude to takový skleník.
A asi mě budete kamenovat, ale na terase by dle mého názoru měla být možnost připojení myčky a úložné prostory pro nádobí. Jako ne full kuchyňskou linku, ale když vidím, kolik nádobí taháme tam a sem a sem a tam...
Seat Altea XL-prodáno
Ford Focus kombi, 1,8 TDCi, 85 kW, Ghia(+tempomat,+DRL), RV 05/2002-prodáno
Honda Jazz, 1,4 GD1 61 kW, automat(+DRL), RV 03/2003
Škoda Forman 135, LPG, 43 kW, GLX, RV 12/1992, model 1993-prodáno
-
PeS
- Pokročilý

- Příspěvky: 836
- Registrován: 01.08.2008 20:07
Re: Projekt dřevostavby - půdorys str. 4
No jasně - rozvod vody a odpady to se hodí všude. A taky nezapomeň na rozvod stlačeného vzduchu - nikdy nevíš kdy budeš potřebovat něco dofouknoutEidž píše:A asi mě budete kamenovat, ale na terase by dle mého názoru měla být možnost připojení myčky a úložné prostory pro nádobí.
- miki21
- Test driver

- Příspěvky: 13643
- Registrován: 01.04.2009 18:21
- Bydliště: Třinec
Re: Projekt dřevostavby - půdorys str. 4
A rozvody piva, kdyby byla žízeň.
Každopádně si nevybereš a až časem zjistíš, co je pro Tebe výhodnější a co bys příště udělal jinak.
Každopádně si nevybereš a až časem zjistíš, co je pro Tebe výhodnější a co bys příště udělal jinak.
Fofo II 1,8 16v modrá combi
Funguje zde funkce HLEDAT Prosím,používejte ji před založením nového tématu.
Funguje zde funkce HLEDAT Prosím,používejte ji před založením nového tématu.
- Kóťa
- Test driver

- Příspěvky: 9765
- Registrován: 02.02.2008 03:18
- Bydliště: Střední Čechy
- Kontaktovat uživatele:
Re: Projekt dřevostavby - půdorys str. 4
miki21 píše:A rozvody piva, kdyby byla žízeň.![]()
Píšu si...
- Kóťa
- Test driver

- Příspěvky: 9765
- Registrován: 02.02.2008 03:18
- Bydliště: Střední Čechy
- Kontaktovat uživatele:
Re: Projekt dřevostavby - půdorys str. 4
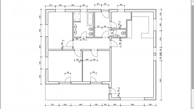
Tak jsme se trochu zase posunuli s tim půdorysem. Máte k tomu někdo něco? Já nějaký připomínky mám, ale nebudu Vás navádět
Dík.
- ZaQik
- Admin

- Příspěvky: 25115
- Registrován: 30.05.2010 17:33
- Bydliště: exit 82 na D0
Re: Projekt dřevostavby - půdorys str. 4
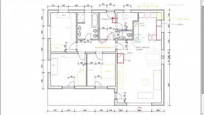
za me OK ... jen nevidim prostor pro ulozne prostory v koupelne ...
Ford Focus mk3 combi 1.6 Ti-VCT, r.v.2018 + Ford Fiesta mk7 3D 1.25, r.v.2014
byl Ford Focus mk2 combi 1.6, r.v.2009 + Ford Fiesta mk6 1.4 TDCi r.v. 2004
Nejsem poradna, encyklopedie ani hotline spolecnosti Ford - ptejte se na foru, od toho je.
byl Ford Focus mk2 combi 1.6, r.v.2009 + Ford Fiesta mk6 1.4 TDCi r.v. 2004
Nejsem poradna, encyklopedie ani hotline spolecnosti Ford - ptejte se na foru, od toho je.
- Kóťa
- Test driver

- Příspěvky: 9765
- Registrován: 02.02.2008 03:18
- Bydliště: Střední Čechy
- Kontaktovat uživatele:
Re: Projekt dřevostavby - půdorys str. 4
Jojo, to mě taky došlo, prostor pouze pod umyvadlem. Leda zrušit bidet a pak by bylo místo na skříňku... Ale rušit si bidet? No...nevím...
- ZaQik
- Admin

- Příspěvky: 25115
- Registrován: 30.05.2010 17:33
- Bydliště: exit 82 na D0
Re: Projekt dřevostavby - půdorys str. 4
ja bych ho zrusil (nam na nej misto nezbylo) - do vany to mas kousek
... zrusil jsem sprchac v prizemi (druhy je v patre) a mame misto nej krasnou vysokou skrinku
Ford Focus mk3 combi 1.6 Ti-VCT, r.v.2018 + Ford Fiesta mk7 3D 1.25, r.v.2014
byl Ford Focus mk2 combi 1.6, r.v.2009 + Ford Fiesta mk6 1.4 TDCi r.v. 2004
Nejsem poradna, encyklopedie ani hotline spolecnosti Ford - ptejte se na foru, od toho je.
byl Ford Focus mk2 combi 1.6, r.v.2009 + Ford Fiesta mk6 1.4 TDCi r.v. 2004
Nejsem poradna, encyklopedie ani hotline spolecnosti Ford - ptejte se na foru, od toho je.
- Kóťa
- Test driver

- Příspěvky: 9765
- Registrován: 02.02.2008 03:18
- Bydliště: Střední Čechy
- Kontaktovat uživatele:
Re: Projekt dřevostavby - půdorys str. 4
Proberu to s paní vedoucí
Něco dalšího Tě tam "netrápí"?
- tym
- Test driver

- Příspěvky: 3745
- Registrován: 20.05.2011 21:49
- Bydliště: Pilsner Urquell
Re: Projekt dřevostavby - půdorys str. 4
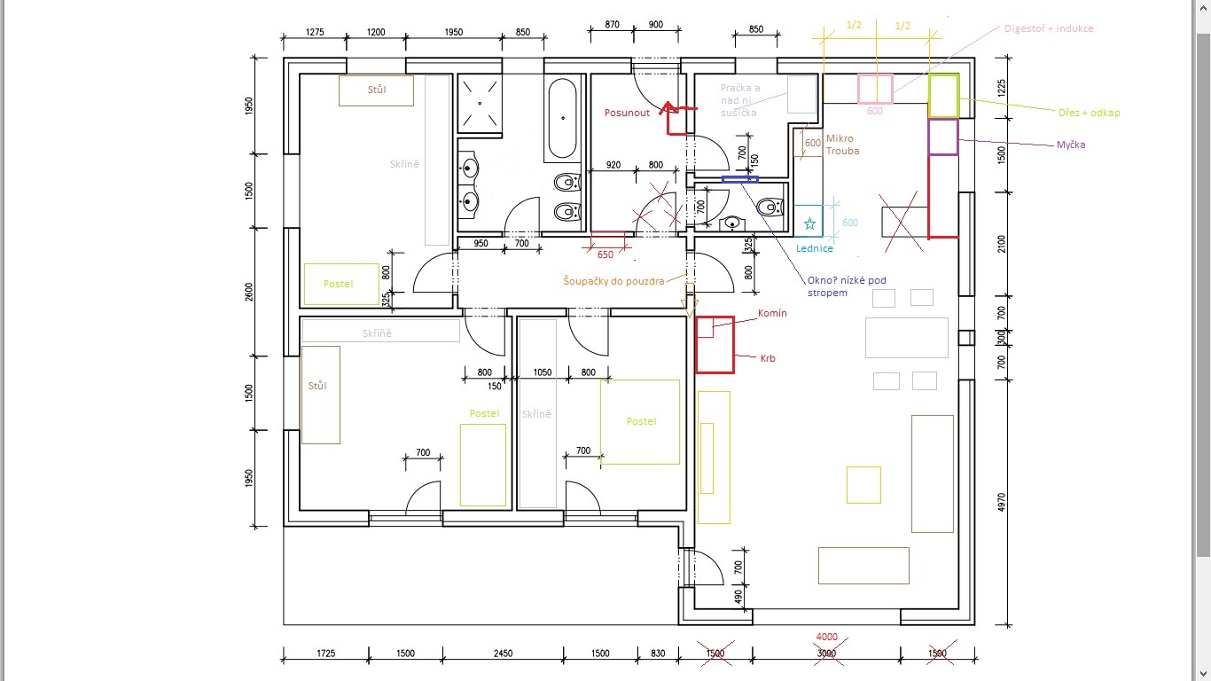
Dveře obývák otočit otevírání. Vesměs budou stále asi otevřené, ne? Případně bych dal asi spíš šoupačky na stěnu, nevypadá to špatně, máme to tak doma. Jinak samozřejmě není vidět nábytek atd. ale přijde mi to celkem fajn.
- miki21
- Test driver

- Příspěvky: 13643
- Registrován: 01.04.2009 18:21
- Bydliště: Třinec
Re: Projekt dřevostavby - půdorys str. 4
JJ, šoupačky na zdi( případne do zdi) ušetří spousty místa. 
Fofo II 1,8 16v modrá combi
Funguje zde funkce HLEDAT Prosím,používejte ji před založením nového tématu.
Funguje zde funkce HLEDAT Prosím,používejte ji před založením nového tématu.
- ZaQik
- Admin

- Příspěvky: 25115
- Registrován: 30.05.2010 17:33
- Bydliště: exit 82 na D0
Re: Projekt dřevostavby - půdorys str. 4
soupacky ho vyjdou na 25kKc - jen ty dvere prohod, at se kridlo otevira ke zdi
pokud chces bidet, tak ho tam nech ... jelikoz mas pracku v technicke mistnosti, tak v koupelne nebudes mit prasky, avivaze, atd. - tim dost mista usetris
pokud chces bidet, tak ho tam nech ... jelikoz mas pracku v technicke mistnosti, tak v koupelne nebudes mit prasky, avivaze, atd. - tim dost mista usetris
Ford Focus mk3 combi 1.6 Ti-VCT, r.v.2018 + Ford Fiesta mk7 3D 1.25, r.v.2014
byl Ford Focus mk2 combi 1.6, r.v.2009 + Ford Fiesta mk6 1.4 TDCi r.v. 2004
Nejsem poradna, encyklopedie ani hotline spolecnosti Ford - ptejte se na foru, od toho je.
byl Ford Focus mk2 combi 1.6, r.v.2009 + Ford Fiesta mk6 1.4 TDCi r.v. 2004
Nejsem poradna, encyklopedie ani hotline spolecnosti Ford - ptejte se na foru, od toho je.
- Kóťa
- Test driver

- Příspěvky: 9765
- Registrován: 02.02.2008 03:18
- Bydliště: Střední Čechy
- Kontaktovat uživatele:
Re: Projekt dřevostavby - půdorys str. 4
Šoupačky jsou za 25? Jsem čekal tak 10-15...možná to teda přehodnotíme...
Takhle máme připomínky pro projektanta...
Takhle máme připomínky pro projektanta...
- tym
- Test driver

- Příspěvky: 3745
- Registrován: 20.05.2011 21:49
- Bydliště: Pilsner Urquell
Re: Projekt dřevostavby - půdorys str. 4
Zaqik - šíření poplašné zprávy
. Počítej cca 2-3 tisíce víc, než normální.
Alespoň u nás to tak v případě Sapelli tak nějak bylo.
Nebylo to tedy do pouzdra, ale na stěnu.
Nebylo to tedy do pouzdra, ale na stěnu.
Kdo je online
Uživatelé prohlížející si toto fórum: Žádní registrovaní uživatelé a 2 hosti


