Nefunguje tempomat u Mondea (Mk3 a Mk4)
-
xscream
- Nováček

- Příspěvky: 30
- Registrován: 28.09.2011 14:05
Re: Nefunguje tempomat u Mondea 2007 MK4
Zdravím, tak jsem další se stejným problémem a ještě mi přestal fungovat parkovací asistent 
- _eXplorer_
- Nováček

- Příspěvky: 70
- Registrován: 27.01.2010 22:02
- Bydliště: Kladno
- enjoy
- Test driver

- Příspěvky: 5325
- Registrován: 05.02.2013 18:38
- Bydliště: Praha
Re: Nefunguje tempomat u Mondea 2007 MK4
Hlásím se do klubu
Zatím se mi párkrát stalo, že se mi za jízdy sám vypnul tempomat a na tlačítko - zareagoval tempomat úplným vypnutím.
Co si mám představit pod pojmem "napnutí kontaktů?"
Zatím se mi párkrát stalo, že se mi za jízdy sám vypnul tempomat a na tlačítko - zareagoval tempomat úplným vypnutím.
Co si mám představit pod pojmem "napnutí kontaktů?"
Ford Mondeo MK4 Kombi 2008, 2.0i
Ford Ranger, 2008, 2.5 TDCi
Ford Ranger, 2008, 2.5 TDCi
- _eXplorer_
- Nováček

- Příspěvky: 70
- Registrován: 27.01.2010 22:02
- Bydliště: Kladno
Dělal to servis, ale pod airbagem jsou celkem 3 konektory mezi tlačítky a vstupem do volantu. Stačilo je rozpojit a kontakty uvnitř napruzit aby lépe vodily, prý tam vzniká odpor a jednotka to vyhodnocuje jako závadu.
Ford FocusII Titanium 2.0 107kw FlexiFuel
můj Ford život:
Probe I, Galaxy I, Galaxy II, Focus II, Mondeo IV, Focus II FL HTB, Focus II FL combi, Focus III
můj Ford život:
Probe I, Galaxy I, Galaxy II, Focus II, Mondeo IV, Focus II FL HTB, Focus II FL combi, Focus III
- Hany220
- Junior

- Příspěvky: 208
- Registrován: 30.12.2012 13:25
- Bydliště: Ústí nad Labem
Tempomat nejde
Čau chlapy.. měl bych prosbu. Jedu takhle po dálnici a z ničeho nic mi prestane jet tempomat. Doma jsem rozebral volant a kontakty jsou v pohodě.. normálně to pustím a na palubnim počítači se objevy symbol tempomatu..ale rychlost to nedrží..
Nevíte kde může bejt zakopanej pes??:/
- Dr.Romca
- .

- Příspěvky: 7107
- Registrován: 27.06.2011 15:06
- Bydliště: Praha
- Kontaktovat uživatele:
Re: Nefunguje tempomat u Mondea (Mk3 a Mk4)
Ještě poznámka:
principielně to bude stejné - jsou tam špatné kontakty na tlačítkách volantu - to jsi vyloučil, špatné kontakty na konektorech (je to odporová síť a přechodový odpor jí změní hodnoty a jednotka nevyhodnotí) a nebo to je špatné tlačítko na některém pedálu... Ještě soudě ze schématu - zapínání je na jiném kontaktu než všechna ostatní tlačítka, možná je tedy problém tam...
principielně to bude stejné - jsou tam špatné kontakty na tlačítkách volantu - to jsi vyloučil, špatné kontakty na konektorech (je to odporová síť a přechodový odpor jí změní hodnoty a jednotka nevyhodnotí) a nebo to je špatné tlačítko na některém pedálu... Ještě soudě ze schématu - zapínání je na jiném kontaktu než všechna ostatní tlačítka, možná je tedy problém tam...
-
ppga
- Nováček

- Příspěvky: 2
- Registrován: 09.09.2014 19:02
Nefunkční adaptivní tempomat ACC Mondeo MK4
Ahoj, rád bych se zeptal zda se dá tempomat deaktivovat jinak než diagnostikou.
Koupil jsem Mondeo MK4 2008 TitaniumX s ACC, který byl nefunkční (tzn. na dispeji žádné chyby a po stisku vypínače tempomatu se nestane nic).
ELMconfig ukazuje, že ACC je aktivní(dle screenů z návodu http://www.ford-focus.cz/forum/viewtopi ... 75&t=39187), všechny pojistky OK.
Chyby
BCM
C2003 Steering wheel switch left module
- levy modul ovladani na volantu
U2107 Collision Mitigation By Braking
B10AC Cruise control Switch
- vypinac tempomatu, tahle nesla smazat
PCM
P0564 Cruise Control Multi-function Input A Circuit
- obvod A vícefunkčního vstupu tempomatu, nesla smazat
ABS
P1635 Tire / Axle Ratio out of acceptable range.
- pneumatiky/převod rozvodovky mimo přijatelný rozsah
CCM
U0418 Invalid data recieved from brake system control module
- neplatna data prijata z ridiciho modulu brzdoveho systemu, nejde smazat
Než se pustím do čištění kontaktů tlačítek na volantu, rád bych věděl zda P0564 a B10AC není náhodou něco jako kdesi vytažený konektor, aby na displeji nesvítila porucha ACC. U U0418 předpokládám nějaký uhnilý drát...? Rozjezd do kopce funguje a samotné ABS/ESP taky.
Díky
Sloučeno. l.j.
Koupil jsem Mondeo MK4 2008 TitaniumX s ACC, který byl nefunkční (tzn. na dispeji žádné chyby a po stisku vypínače tempomatu se nestane nic).
ELMconfig ukazuje, že ACC je aktivní(dle screenů z návodu http://www.ford-focus.cz/forum/viewtopi ... 75&t=39187), všechny pojistky OK.
Chyby
BCM
C2003 Steering wheel switch left module
- levy modul ovladani na volantu
U2107 Collision Mitigation By Braking
B10AC Cruise control Switch
- vypinac tempomatu, tahle nesla smazat
PCM
P0564 Cruise Control Multi-function Input A Circuit
- obvod A vícefunkčního vstupu tempomatu, nesla smazat
ABS
P1635 Tire / Axle Ratio out of acceptable range.
- pneumatiky/převod rozvodovky mimo přijatelný rozsah
CCM
U0418 Invalid data recieved from brake system control module
- neplatna data prijata z ridiciho modulu brzdoveho systemu, nejde smazat
Než se pustím do čištění kontaktů tlačítek na volantu, rád bych věděl zda P0564 a B10AC není náhodou něco jako kdesi vytažený konektor, aby na displeji nesvítila porucha ACC. U U0418 předpokládám nějaký uhnilý drát...? Rozjezd do kopce funguje a samotné ABS/ESP taky.
Díky
Sloučeno. l.j.
- ZaQik
- Admin

- Příspěvky: 25203
- Registrován: 30.05.2010 17:33
- Bydliště: exit 82 na D0
Re: Nefunguje tempomat u Mondea (Mk3 a Mk4)
deaktivace jen diagnostikou
vypada to, ze nemas spravny ovladac tempomatu, nebo je odpojen (GEM - SASM - krouzek - tlacitka)
vypada to, ze nemas spravny ovladac tempomatu, nebo je odpojen (GEM - SASM - krouzek - tlacitka)
Ford Focus mk3 combi 1.6 Ti-VCT, r.v.2018 + Ford Fiesta mk7 3D 1.25, r.v.2014
byl Ford Focus mk2 combi 1.6, r.v.2009 + Ford Fiesta mk6 1.4 TDCi r.v. 2004
Nejsem poradna, encyklopedie ani hotline spolecnosti Ford - ptejte se na foru, od toho je.
byl Ford Focus mk2 combi 1.6, r.v.2009 + Ford Fiesta mk6 1.4 TDCi r.v. 2004
Nejsem poradna, encyklopedie ani hotline spolecnosti Ford - ptejte se na foru, od toho je.
-
ppga
- Nováček

- Příspěvky: 2
- Registrován: 09.09.2014 19:02
Re: Nefunguje tempomat u Mondea (Mk3 a Mk4)
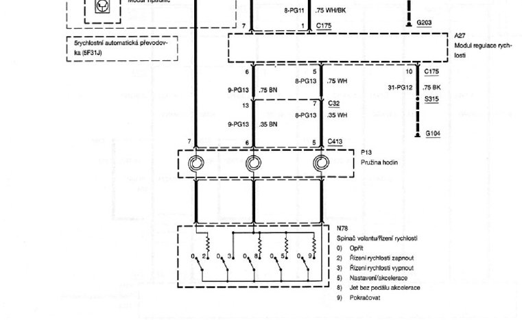
Díky, myslel jsem si to. Neměl by někdo schéma tempomatu pro MK4?
- Fordeo
- Nováček

- Příspěvky: 150
- Registrován: 18.10.2014 09:09
- Bydliště: České Budějovice
Re: Nefunguje tempomat u Mondea (Mk3 a Mk4)
Neuveritelny, vzdy, kdyz si reknu, ze Mondeo slape, stane se zavada 
Tempomat nefunguje, z niceho nic, moc ho nepouzivam, ze by byly vymackane tlacitka? To je divny..Pojistka je v poradku..
Co radite? rozebrat volant a dat si tam riditka?
jo kde nic neni, nic se nesere, na tom neco bude 
Tempomat nefunguje, z niceho nic, moc ho nepouzivam, ze by byly vymackane tlacitka? To je divny..Pojistka je v poradku..
Co radite? rozebrat volant a dat si tam riditka?
je: Ford Mondeo 2.2 tdci 114kw 2005 Ghia X Zetec S kombi
bylo: Ford Escort 1.6 rv.99, Ford Escort 1.8 TD rv. 00 v plné palbě
bylo: Ford Escort 1.6 rv.99, Ford Escort 1.8 TD rv. 00 v plné palbě
- Fordeo
- Nováček

- Příspěvky: 150
- Registrován: 18.10.2014 09:09
- Bydliště: České Budějovice
Re: Nefunguje tempomat u Mondea (Mk3 a Mk4)
Tak jinak..tempomat je funkcni, ale nejde zapnout tlacitkem ON ale zapnu ho tlacitmem + nebo res, ale hned se zapne pri rychlosti, kterou prave jedu.
Z toho vyvozuju, ze by to mohlo byt kontaktem v tlacitku...
Blba otazka, muzu rozbrat volant od tech plastu nebo jak bych mohl to tlacitko vyndat nevite??
Z toho vyvozuju, ze by to mohlo byt kontaktem v tlacitku...
Blba otazka, muzu rozbrat volant od tech plastu nebo jak bych mohl to tlacitko vyndat nevite??
je: Ford Mondeo 2.2 tdci 114kw 2005 Ghia X Zetec S kombi
bylo: Ford Escort 1.6 rv.99, Ford Escort 1.8 TD rv. 00 v plné palbě
bylo: Ford Escort 1.6 rv.99, Ford Escort 1.8 TD rv. 00 v plné palbě
- Lari
- Zkušený

- Příspěvky: 1490
- Registrován: 02.02.2008 03:18
- Bydliště: Jihlava
Re: Nefunkční adaptivní tempomat ACC Mondeo MK4
Podívat se na to origo diagnostikou,ale vypadá to buď na tlačítka nebo kroužek pod volantem..Zkontroluj taky napájení a dráty u kamery vepředu..Lámou se tam dráty..Tlačítka a jednotku mám doma navíc,kdyby si chtěl zkoumat..ppga píše:Ahoj, rád bych se zeptal zda se dá tempomat deaktivovat jinak než diagnostikou.
Koupil jsem Mondeo MK4 2008 TitaniumX s ACC, který byl nefunkční (tzn. na dispeji žádné chyby a po stisku vypínače tempomatu se nestane nic).
ELMconfig ukazuje, že ACC je aktivní(dle screenů z návodu http://www.ford-focus.cz/forum/viewtopi ... 75&t=39187), všechny pojistky OK.
Chyby
BCM
C2003 Steering wheel switch left module
- levy modul ovladani na volantu
U2107 Collision Mitigation By Braking
B10AC Cruise control Switch
- vypinac tempomatu, tahle nesla smazat
PCM
P0564 Cruise Control Multi-function Input A Circuit
- obvod A vícefunkčního vstupu tempomatu, nesla smazat
ABS
P1635 Tire / Axle Ratio out of acceptable range.
- pneumatiky/převod rozvodovky mimo přijatelný rozsah
CCM
U0418 Invalid data recieved from brake system control module
- neplatna data prijata z ridiciho modulu brzdoveho systemu, nejde smazat
Než se pustím do čištění kontaktů tlačítek na volantu, rád bych věděl zda P0564 a B10AC není náhodou něco jako kdesi vytažený konektor, aby na displeji nesvítila porucha ACC. U U0418 předpokládám nějaký uhnilý drát...? Rozjezd do kopce funguje a samotné ABS/ESP taky.
Díky
Sloučeno. l.j.
Byl-Ford Focus 1,8 TDDi r.v. 2000,16" ALU, xenony,,4el.okna,,BC, webasto, EIBACH,ST170 LOOK, DIGI klima, motor 1,8TDCi 85kW,tempomat,ABS,ASR

- Fordeo
- Nováček

- Příspěvky: 150
- Registrován: 18.10.2014 09:09
- Bydliště: České Budějovice
Re: Nefunguje tempomat u Mondea (Mk3 a Mk4)
Jeste se zeptam, kdyz aktivujete tempomat tlacitkem ON, zobrazi se vam ikona na displeji nebo to funguje jako ted me, ze date ON a ikona se ukaze az po nastaveni rychlosti? Neco mi rika, ze se ikona zobrazovala uz po aktivaci tlacitkem ON. Tempomat funguje, ale po stisknuti ON se ikona neukaze, ukaze se az kdyz zmacknu + nebo - , kdyz nastavuju rychlost.
Muzete mi nekdo napsat jak to je? Diky
Muzete mi nekdo napsat jak to je? Diky
je: Ford Mondeo 2.2 tdci 114kw 2005 Ghia X Zetec S kombi
bylo: Ford Escort 1.6 rv.99, Ford Escort 1.8 TD rv. 00 v plné palbě
bylo: Ford Escort 1.6 rv.99, Ford Escort 1.8 TD rv. 00 v plné palbě
-
krenda
- Test driver

- Příspěvky: 2668
- Registrován: 25.12.2011 16:56
- Bydliště: Novojičínsko
Re: Nefunguje tempomat u Mondea (Mk3 a Mk4)
Ikona se ukáže až po nastavení rychlosti. Signalizuje, že rychlost auta je ovládána tempomatem
Když tempomat vypneš (tlačítkem OFF, sešlápnutím spojky nebo brzdy, tlačítkem RES) tak ikona zase zmizne.
ON uvedení tempomatu do pohotovosti- ikona nesvítí
SET+ stiskem nastavíš aktuální rychlost, přidržením zrychlíš na požadovanou rychlost- ikona svítí
- přidržením zpomalíš na požadovanou rychlost- ikona svítí
RES stiskem přerušíš funkci tempomatu- ikona zhasne. Dalším stiskem obnovíš funkci tempomatu na poslední nastavenou rychlost- ikona se rožne
OFF vypnutí tempomatu- ikona zhasne a ostatní tlačítka jsou nefunkční do opětovného stisku ON
Brzda, spojka funguje jako přerušení tempomatu- ikona zhasne. Tempomat zůstane v pohotovosti.
ON uvedení tempomatu do pohotovosti- ikona nesvítí
SET+ stiskem nastavíš aktuální rychlost, přidržením zrychlíš na požadovanou rychlost- ikona svítí
- přidržením zpomalíš na požadovanou rychlost- ikona svítí
RES stiskem přerušíš funkci tempomatu- ikona zhasne. Dalším stiskem obnovíš funkci tempomatu na poslední nastavenou rychlost- ikona se rožne
OFF vypnutí tempomatu- ikona zhasne a ostatní tlačítka jsou nefunkční do opětovného stisku ON
Brzda, spojka funguje jako přerušení tempomatu- ikona zhasne. Tempomat zůstane v pohotovosti.
je: Ford S-Max, 09/2020, 7míst, 2.0 ecoblue, 140kW, 4x4
bylo: Ford Focus, 09/2020, hatchback, 2.3 ecoboost, 228kW, ST
bylo: Ford Mondeo, 09/2013, kombi, 2.0 SCTi 202,3kW, Titanium S
bylo: Ford Focus, 09/2020, hatchback, 2.3 ecoboost, 228kW, ST
bylo: Ford Mondeo, 09/2013, kombi, 2.0 SCTi 202,3kW, Titanium S
- Fordeo
- Nováček

- Příspěvky: 150
- Registrován: 18.10.2014 09:09
- Bydliště: České Budějovice
Re: Nefunguje tempomat u Mondea (Mk3 a Mk4)
Jo diky, tak nevim co mi hrabe, ze mi tempomat nefunguje, kdyz funguje
nevim, proc mam v hlave, ze pri ON se ukaze ikonka...
Diky za odpoved
Diky za odpoved
je: Ford Mondeo 2.2 tdci 114kw 2005 Ghia X Zetec S kombi
bylo: Ford Escort 1.6 rv.99, Ford Escort 1.8 TD rv. 00 v plné palbě
bylo: Ford Escort 1.6 rv.99, Ford Escort 1.8 TD rv. 00 v plné palbě
Kdo je online
Uživatelé prohlížející si toto fórum: Žádní registrovaní uživatelé a 0 hostů

